Menus de la cantine
+33 5 55 30 41 94
saintevalerie@outlook.com
Accueil
L'école
Présentation de l'école
Projet éducatif
Equipe pédagogique
ULIS
Inscriptions
Assurance scolaire
Histoire de l'école
Conseil d'établissement
APEL
Site de l'APEL Nationale
Le Facebook de l'APEL Limousin
Le Facebook de l'APEL de Sainte Valérie
Le site de l'APEL de Sainte Valérie
OGEC
Actualités
Agenda
Contact
Travaux
Fournitures
Alertes Météo en cours
Pas d'alerte en cours sur le département 87-Haute Vienne
Recherche dans le site
Accueil
Travaux
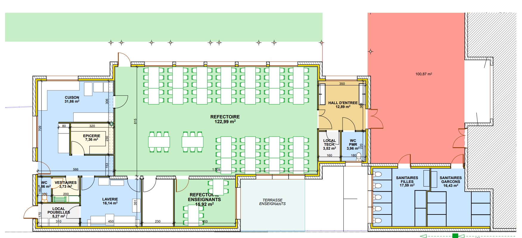
PLAN DU REFECTOIRE/PREAU/TOILETTES
Imprimer
Page 77 sur 77
Début
Précédent
68
69
70
71
72
73
74
75
76
77
Accueil
L'école
Présentation de l'école
Projet éducatif
Equipe pédagogique
ULIS
Inscriptions
Assurance scolaire
Histoire de l'école
Conseil d'établissement
APEL
Site de l'APEL Nationale
Le Facebook de l'APEL Limousin
Le Facebook de l'APEL de Sainte Valérie
Le site de l'APEL de Sainte Valérie
OGEC
Actualités
Agenda
Contact
Travaux
Fournitures
Création du site